Modiko
673
page-template,page-template-blog-small-image,page-template-blog-small-image-php,page,page-id-673,bridge-core-3.0.1,qodef-qi--no-touch,qi-addons-for-elementor-1.5.1,qode-page-transition-enabled,ajax_fade,page_not_loaded,,qode-theme-ver-28.6,qode-theme-bridge,elementor-default,elementor-kit-5,elementor-page elementor-page-673
 

Navarra

Todo lo que hacemos lo hacemos con calidad

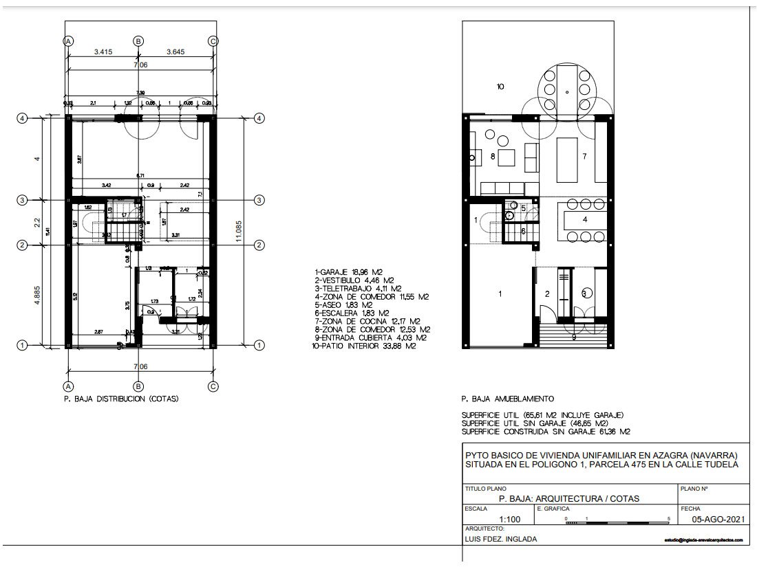
Proyecto de vivienda unifamiliar en Azagra Navarra

Esta vivienda modular Esta industrialmente diseñada. Su sistema de construcción modular en acero galvanizado es el desarrollo de las necesidades y carencias de los mercados en todo el mundo, innovando y desarrollando una respuesta con excelencia para nuestros clientes.


Modiko

Basado en soluciones tecnológicas y de innovación
Ponemos a disposición consultores técnico-comerciales, que acompañan y asesoran todo el proceso de construcción de la casa de su sueño